Aa­tos­kan­vai­niol­le tulee myyn­tiin 55 pien­ta­lo­tont­tia

Uudet tontit tulevat tarpeeseen. Seuraava Pyhäjoen kunnan kaavoituskohde on Matinsaaressa.

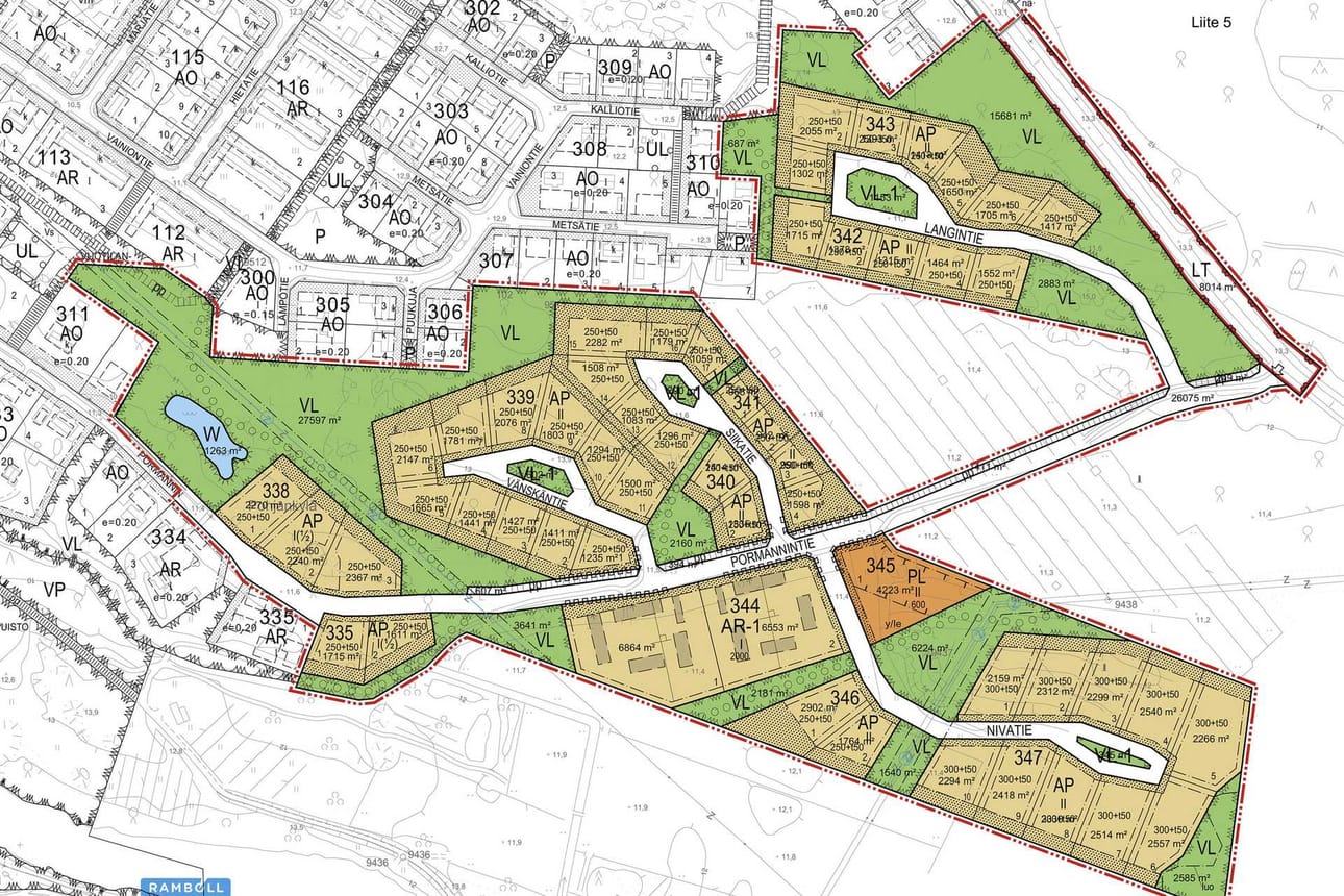
Aatosvainiolle tulevien omakotitalotonttien koot vaihtelevat 950 neliöstä 2¿900 neliöön. Omakotitalotonttien lisäksi alueelle on kaavoitettu kaksi rivitalotonttia.
Aatosvainiolle tulevien omakotitalotonttien koot vaihtelevat 950 neliöstä 2¿900 neliöön. Omakotitalotonttien lisäksi alueelle on kaavoitettu kaksi rivitalotonttia.

Pyhäjoen kunnan uuden Aatosvainion asemakaava-alueen tontit tulevat jatkuvaan myyntiin maanantaiaamuna.

Kehittämisasiamies Jyri Laakso sanoo, että uudet tontit tulevat tarpeeseen, sillä tällä hetkellä tontteja on saatavilla vähäisesti.

Asemakaava-alueella on muutamia hajatontteja. Lisäksi asemakaava-alueen ulkopuolella kylissä on jonkin verran yksittäisiä rakennuspaikkoja.

Aatosvainiolle tulee myyntiin 55 tonttia. Niiden myyntihinta on 11 euroa neliöltä. Omakotitalotonttien koot vaihtelevat 950 neliöstä 2 900 neliöön.

–Pyhäjoen kunnan tavoitteena on tarjota monipuolisia asumismahdollisuuksia, Laakso sanoo.

Omakotitonttien lisäksi alueelle on kaavoitettu kaksi rivitalotonttia.

Aatosvainio sijaitsee vajaan kilometrin päässä Pyhäjoen keskustasta 8-tien itäpuolella. Joelle alueelta on matkaa muutama sata metriä.

Laakso ennustaa, että tonttikauppa alkaa jo tämän vuoden puolella. Jotkut ovat voineet odottaa tontteja jo jonkin aikaa.

–Parhaat viedään päältä.

Joitain kyselyitä tonteista on tullut jo nyt. Myytävää riittää todennäköisesti reilusti ensi vuoden puolelle ja pidemmällekin. Aatoskankaan rakentaminen on kunnalle pitkän linjan suunnitelma.

–Oletuksena ei olekaan, että kahdessa viikossa tontit olisi loppuun asti myyty.

Seuraava laajempi satsi pientalotontteja on tulossa muutaman vuoden kuluessa Matinsaareen.

Matinsaaren alueen kaavoitus on alkanut. Sen koko on vajaat sata hehtaaria. Itse Matinsaaren koko on noin 30 hehtaaria. Kunta osti alueen tänä vuonna jakokunnalta. Laakso sanoo, että aluetta varten on joitain visioita, mutta mitään konkreettista ei vielä tällä hetkellä ole.

Yritystonttien osalta Pyhäjoen keihäänkärki on Ollinmäen alue. Yritysalueen 55 tontista on tällä hetkellä luovutettu yrityksille reilut 30, joten vapaana on vielä vajaa parikymmentä tonttia.

Ollinmäelle on valmistunut Forenomin 30 huoneiston hotellihanke.

Kaikki tontin lunastaneet yritykset eivät ole vielä aloittaneet rakentamista. Jotkut yritykset ovat tehneet valmistelevia töitä aktiivisesti.

Ollinmäelläkin katsotaan pitkälle tulevaisuuteen.

–Ei ole ajatus, että seuraavana vuonna olisivat kaikki kaavoitetut tontit menneet.

Mainos
Raahen Seudun pelit

Pelaa Raahen Seudun digitaalisia pelejä

Aivojumppaa tai rentoa ajanvietettä – tutustu peleihin ja löydä suosikkisi

Aloita pelaaminen
Ilmoita asiavirheestä